Home View Golf Course Cabins View Mountaintop Cabins

Golf Course Map & Directions

Mountain Top Map & Directions

Local Attractions

Directions

About Hancock, NY

French Woods Golf Course   Reservations & Rates

Contact Us

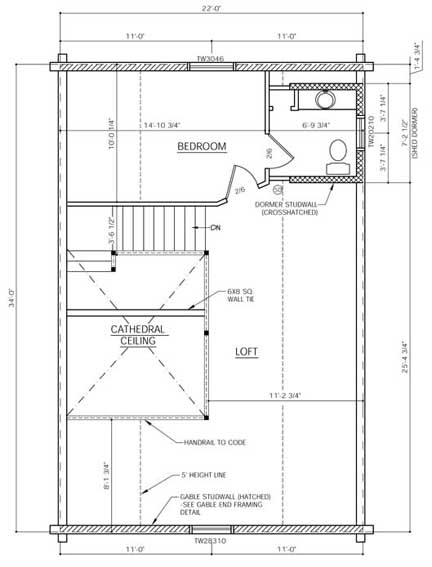
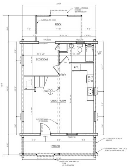
Floor Plans